Este site utiliza cookies para permitir a mudança de língua e o armazenamento dos seus imóveis favoritos. Ao utilizar este site, concorda que o mesmo utilize cookies.

Terreno - Moradia de 3 frentes - Vilar do Paraíso

110.000€




Referência

DP005

Natureza

Venda

Tipo de Imóvel

Terreno

Tipologia

Não se aplica

Estado

Em Projecto

Certificado energético

Não se aplica


Distrito

Porto

Concelho

Vila Nova de Gaia

Freguesia

Mafamude e Vilar do Paraíso

Código Postal

4405


Área Útil

242 m2

Área Bruta

262 m2

Área de Terreno

345 m2



Contactar Imobiliária

*Preenchimento obrigatório
Ao clicar em 'Enviar', declara que aceita a nossa Política de Privacidade.
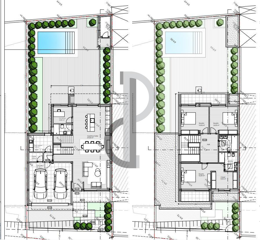
Terreno urbano com 345m2, em zona de transformação urbana, com viabilidade construtiva de uma moradia de 3 frentes + piscina.

Potencial construtivo:
121m2 de implantação;
242m2 de área bruta; 
3 pisos: Cave + 2 pisos + Aproveitamento de sótão/solário/escritório;
Orientação solar: (NO/SE/NE)

Ótima localização: 
- 1 min Pingo Doce Valadares; 
- 1 min entrada auto estrada A44; 
- 1 min entrada auto estrada A29;
- 3 min Continente Valadares;
- 5 min praia Valadares


Envolvente:
Zona tranquila, essencialmente de moradias.
Bons acessos a serviços, comércio e transportes públicos nas imediações

Fotografias: - Imagem 3D apenas ilustrativa; 

- Plantas 2D: reais em planeamento com arquiteto, apenas para 2 pisos por opção pessoal.


Agende já a sua visita!

Ruth Santos
Douro Project Real Estate
Zona
GeraisAuto-Estrada:Sim
GeraisComboio:Sim
GeraisPerto de mar:Sim
GeraisTransportes públicos:Sim
ProximidadeBancos:Sim
ProximidadeBombeiros:Sim
ProximidadeCentros comerciais:Sim
ProximidadeClínicas:Sim
ProximidadeEscolas:Sim
ProximidadeFarmácias:Sim
ProximidadeGinásios:Sim
ProximidadeHospitais:Sim
ProximidadeJardins de infância:Sim
ProximidadePadarias:Sim
ProximidadePolícia:Sim
ProximidadePraias:Sim
ProximidadeServiços públicos:Sim
ProximidadeSupermercados:Sim

Este imóvel não tem áreas definidas.

Imóveis
Semelhantes

Terreno
Venda

155.000€

Terreno com Projeto Aprovado para Moradia T4 ...

155.000€

Porto / Vila Nova de Gaia / Gulpilhares e Valadares


Ref: DP033

Ref: DP033

370 m2

Isento

Terreno
Venda
Reservado

119.900€

Terreno – Moradia de 3 frentes – Valadares...

119.900€

Porto / Vila Nova de Gaia / Gulpilhares e Valadares


Ref: DP001

Ref: DP001

371.35 m2

Isento

Terreno
Venda

135.000€

Terreno para construção de moradia - Seixezel...

135.000€

Porto / Vila Nova de Gaia / Pedroso e Seixezelo


Ref: DP002

Ref: DP002

4000 m2

Isento