Este site utiliza cookies para permitir a mudança de língua e o armazenamento dos seus imóveis favoritos. Ao utilizar este site, concorda que o mesmo utilize cookies.

Apartamento Premium T3, ao Parque da cidade - Porto

925.000€




Referência

DP056

Natureza

Venda

Tipo de Imóvel

Apartamento

Tipologia

T3

Estado

Novo

Certificado energético

A

Ano

2026


Distrito

Porto

Concelho

Porto

Freguesia

Lordelo do Ouro e Massarelos

Código Postal

4150


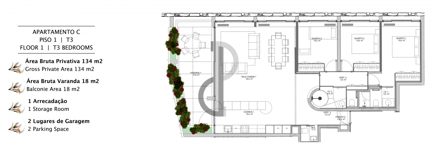
Área Útil

116.4 m2

Área Bruta

134 m2

Área de Terreno

0 m2



Contactar Imobiliária

*Preenchimento obrigatório
Ao clicar em 'Enviar', declara que aceita a nossa Política de Privacidade.
Fração C
Sublime Apartamento T3 com grande varanda

 Exclusividade no coração do Porto
•Empreendimento premium com apenas 6 apartamentos T2 e T3 
•Unidades com varandas e terraços privativos 
•Um projeto pensado para quem procura sofisticação, conforto e privacidade 
 
 Uma localização de excelência
•Situado numa das zonas mais prestigiadas do Porto 
•A poucos passos de: 
-Avenida da Boavista 
-Parque da Cidade 
-Praias do Porto 
•Envolvido por uma oferta completa de: 
-Colégios e universidades 
-Comércio e serviços 
-Transportes 
 
 Design que inspira
•Arquitetura elegante e intemporal, assinada por gabinete de referência 
•Apenas 3 pisos, garantindo um ambiente exclusivo e tranquilo 
•Espaços amplos e luminosos, com ligação fluida ao exterior 
•Varandas e terraços que convidam a viver o melhor do indoor/outdoor 
 
 Acabamentos de excelência
•Materiais nobres e seleção criteriosa de detalhes 
•Pavimentos exteriores em granito “Amarelo Real” 
•Interiores com soalho de madeira natural 
•Guardas em ferro pintado com design clássico e sofisticado 

Cada fração inclui: 
-Lugar de garagem 
-Espaço de arrumação 
 
 Viver com qualidade
•A poucos minutos do mar e rodeado de natureza 
•Um refúgio urbano que combina: 
-Tranquilidade 
-Prestígio 
-Proximidade ao essencial 

Ideal para quem valoriza um estilo de vida exclusivo e equilibrado

Previsão de conclusão: Final de 2026

Orientação Norte/Poente
Piso 1
2 Lugar de garagem

- Planta e tabela com imóveis disponíveis na secção de fotografias
- Fotografias 3D gerais do empreendimento

Agende já a sua visita!

Douro Project Real Estate

Geral
ClimatizaçãoAr condicionado:Sim
ClimatizaçãoBomba de calor:Sim
CaixilhariaVidro Duplo:Sim
CaixilhariaEstores:Sim
Exposição SolarNorte:Sim
Exposição SolarPoente:Sim
Luz NaturalMuito Iluminado:Sim
Ar CondicionadoCentral:Sim
GaragemLugar Interior:Sim
CozinhaMóveis lacado:Sim
CozinhaPlaca:Sim
CozinhaForno:Sim
CozinhaExaustor:Sim
CozinhaFrigorífico:Sim
CozinhaMáquina de lavar loiça:Sim
CozinhaMáquina de lavar roupa:Sim
PavimentoMadeira:Sim
PavimentoSoalho:Sim
Edificio
EquipamentoVideo-Porteiro:Sim
GeraisNº de Lugares de Estacionamento:2
Domótica
GeraisEstores elétricos:Sim

Este imóvel não tem áreas definidas.

Imóveis
Semelhantes

Apartamento
Venda

2.250.000€

Apartamento T4 Duplex com terraço e Jacuzzi -...

2.250.000€

Porto / Porto / Lordelo do Ouro e Massarelos


Ref: DP036

Ref: DP036

230 m2

4

4

Apartamento
Venda

265.000€

Apartamento T2 - Monte dos Burgos - Porto

265.000€

Porto / Porto / Ramalde


Ref: DP43

Ref: DP43

62.2 m2

2

1

Apartamento
Venda

225.000€

Studio T0 - Costa Cabral - Porto

225.000€

Porto / Porto / Paranhos


Ref: DP051

Ref: DP051

35 m2

1

Sim